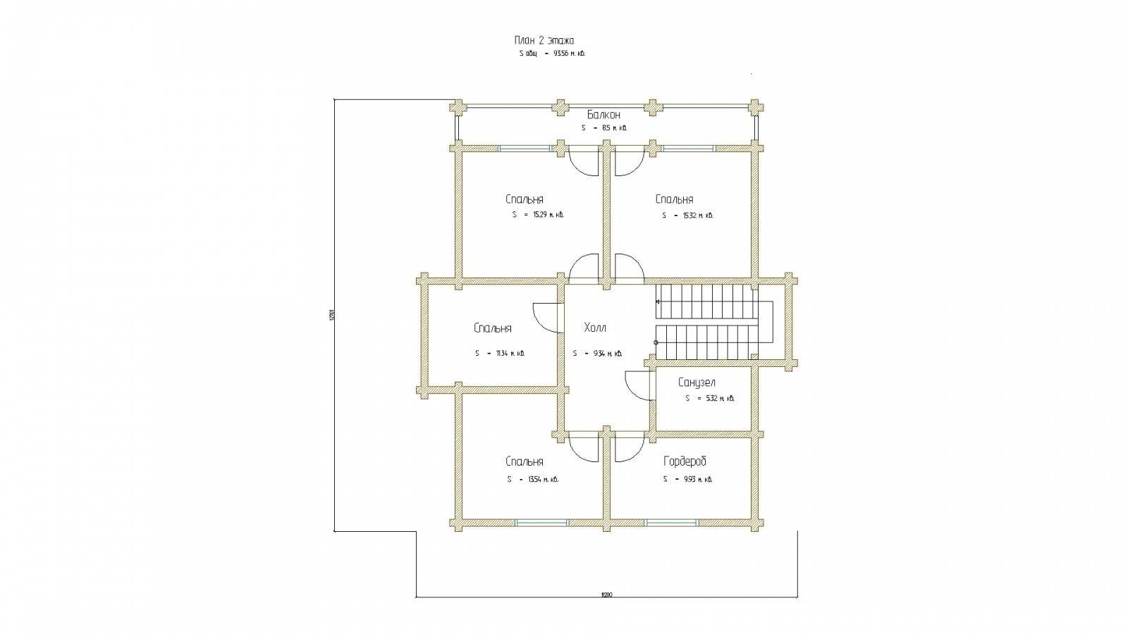
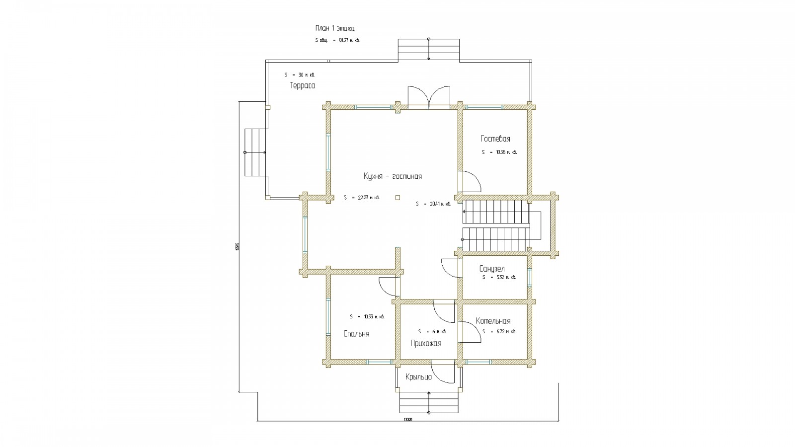
Проект "Проект Д 175 м.кв."

Площадь: 175 м2